Sua obra merece

um projeto confiável!

Projetos BIM

__________________

Contamos com profissionais treinados e qualificados para modelagem arquitetônica, bom como desenvoler seus projetos de instalações elétricas e hidrossanitárias utilizando as melhores ferramentas da metodologia BIM.

A Consulproj, executa com excelência, projetos indústriais, comérciais, residênciais e rurais.

 

Através desta metodologia, os profissionais das diversas disciplinas, trabalham de forma colaborativa, reduzindo os riscos de interferências na execução da obra e desperdicio de material e mão de obra, além conseguimos gerar lista quantitativa de materiais de forma automática, ou seja, bem próxima da realidade da obra.

 

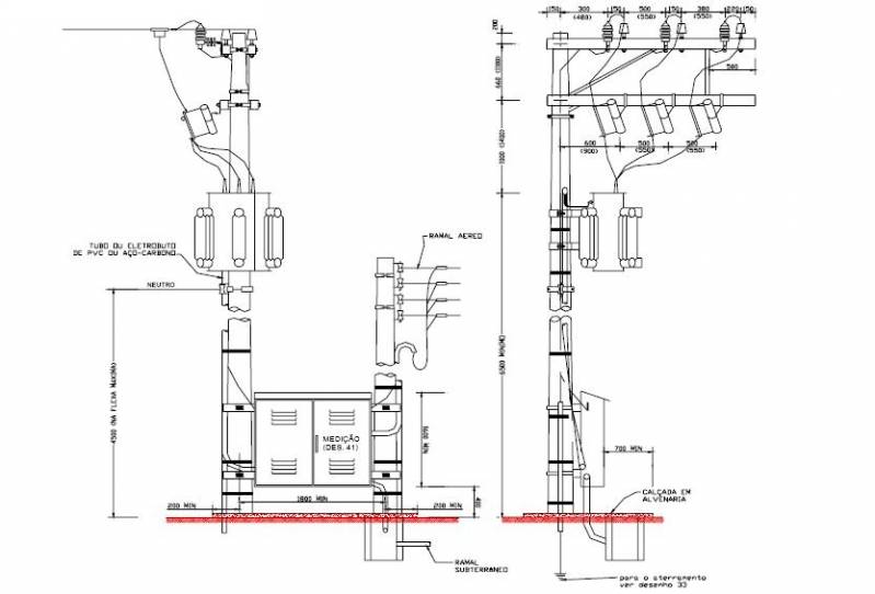
Projetos CAD

__________________

Nossa equipe, desenvolve seu projeto CAD nas disciplinas de elétrica e hidráulica.

 

Nossos projetos são completos, com detalhamento e vistas, além de lista de materiais.

 

A Consulproj, executa com excelência, projetos indústriais, comérciais, residênciais e rurais.

As Built

__________________

As Built é uma expressão inglesa que significa “como construído”. Na área da arquitetura e engenharia a palavra As Built é encontrada na NBR 14645-1, elaboração de “como construído” ou “As Built” para edificações.

O trabalho consiste no levantamento de todas as medidas existentes nas edificações, transformando as informações aferidas, em um desenho técnico que irá representar a atual situação de dados e trajetos de instalações elétricas, hidráulicas, estrutural, etc.

Desta forma, cria-se um registro das alterações ocorridas durante a obra, facilitando a manutenção de futuras intervenções.

 

Durante a obra, o projeto sofre alterações que vão sendo revisadas também, e principalmente, na planta. Então, o documento começa na revisão zero e vai ganhando letras ou números cada vez que tem alterações. A revisão As Built, que traduzido seria “Como Construído” indica que é a revisão final, ou seja, que o desenho está finalizado de acordo com o projeto. Com isso, ele não deve mais sofrer modificações.

                         

Todo projeto de construção civil é composto de diversos desenhos que, ao final são guardados em pastas que formam os registros e a radiografia daquela obra e isso só é possível quando todos os documentos receberam a revisão As Built.

 

Com o projeto As Built em mãos, fica muito mais facil e seguro realizar qualquer reforma ou ampliação, pois todas as instalações realizadas estarão atualizadas no projeto.

 

A Consulproj com sua equipe de engenheiros e projetistas especializados, oferece o serviço de As Built em todas as disciplinas. 

OIP.jpg

Montagem de Painéis

__________________

Realizamos projetos e montagens de painéis de comando e quadro de distribuição de energia elétrica, respeitando as normas de fabricação e segurança.

 

Trabalhamos em parceria com as melhores marcas de componentes para paineis elétricos.

 

 

Adequações de Máquinas e Equipamentos

__________________

Projetamos e executamos adaptações mecânicas e elétricas em maquinas e equipamentos, afim de melhorar a produtividade e atender às normas de segurança.

 

Temos a solução para sua empresa atingir o nível máximo de segurança em suas máquinas e equipamentos de acordo com as normas NR12 e NR10.

 

Automação Industrial

__________________

 

A automação industrial é um dos principais pilares da Indústria 4.0 e representa a integração de tecnologias inteligentes para aumentar a eficiência, reduzir custos e melhorar a qualidade dos processos produtivos.

Na prática, trata-se da aplicação de sistemas de controle, sensores, CLPs (Controladores Lógicos Programáveis), IHMs e servomotores para substituir ou complementar tarefas manuais, garantindo mais precisão e produtividade.

A automatização de máquinas é um dos passos fundamentais nesse processo. Ela consiste em adaptar ou desenvolver equipamentos capazes de executar operações de forma autônoma, segura e padronizada. Isso permite que empresas de diferentes segmentos tenham maior competitividade, otimizem recursos e reduzam falhas operacionais.

Principais benefícios da automação industrial:

Aumento da produtividade: máquinas mais rápidas e eficientes;

Redução de custos operacionais: menos desperdício e menor necessidade de retrabalho;

Qualidade padronizada: processos mais consistentes e controlados;

Segurança: sistemas que protegem operadores e evitam acidentes;

Flexibilidade: adaptação rápida a diferentes produtos e demandas de mercado.

Execução de Obras

__________________

Em elaboração.

Quer mais informações sobre engenharia?